< img height="1" width="1" style="display:none" src="https://www.facebook.com/tr?id=692944559725730&ev=PageView&noscript=1" />

Maroc-Atelier

Maroc-Atelier

Country: Morocco

Year: 2020

Maroc-Atelier
Maroc-Atelier
Maroc-Atelier
Maroc-Atelier
Maroc-Atelier
Maroc-Atelier
Maroc-Atelier
Maroc-Atelier
Atelier du Maroc
Seulement deux boulons d’ancrage par colonne dans l’atelier avec une grue de 5T
PaysMarocAnnée2020
Projet d'information
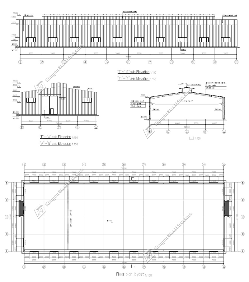
ProjetAtelier de structure en acierDimension70*24*7m (ave un volet de ciel)Vitesse du vent29m/s
MatérielH-steelPaintAlykd paintPurlineC purline
160x60x20x2
ToitPanneau sandwich EPS (0,47mm + 50mm 12kg + 0,37mm) + 1mm de dalle de toit ouvertmurfeuilles d'acier ondulé V900 0,5mmWindowsAlliage d’aluminium
fenêtre coulissante, 1mm cadre+0,5mm verre trempé 3mx1,5mx24
DoorPanneau sandwich
port coulissante 5mx6mx2
Conteneurs6x40HQ

 

Atelier de structure en acier


Atelier de structure en acier