-L'expansion de l'usine signifie que l'entreprise est prospère.
Pendant la pandémie, les produits pharmaceutiques de ce client étaient en train de se développer rapidement et étaient vivement nécessaires pour augmenter la production, ils prévoyaient ainsi de construire un nouveau atelier.
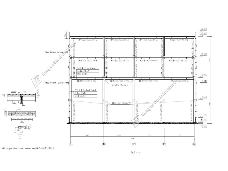
| Usine pharmaceutique algérienne La construction de l’usine symbolise le développement de l’activité | |||||
| Pays | Algérie | Année | 2022 | ||
| Projet d'information | |||||
| Projet | Structure en acier d'une usine pharmaceutique | Dimension | 35,62*30,99*22m (Three floors) | Vitesse du vent | 120km/h |
| Matériel | H-steel | Paint | Alykd paint | Purline | C purline 180x70x20x2 |
| Toit | Panneau sandwich EPS 0.4mm+50mm 12kg+0.4mm | Floor | plancher ondulé galvanisé 0.8mmxV720 | Hauteur de la paroi en brique | 1.2m |
| Door | Porte rabattable 3x4x2m | Decoration sheet | 2.5mm*450mm feuille d alliage d'aluminium jaune | Conteneurs | 19x40HQ |
Le rez-de-chaussée a une hauteur de 10,9 m et sert principalement deAtelier de production avec du matériel en hauteur. Les deuxième et troisième étages sont réservés auxAteliers de stockage et de manipulation manuelle.

This client is particularly focused on the building's aesthetics and requests brown aluminum alloy divider strips at each floor's separation points. We found a specialized supplier to customize it for them.

Au début, ce client nous a fourni des plans préliminaires, ce qui nous a permis de confirmer quelques points simples pour le devis et le projet, ce qui a considérablement amélioré l’efficacité de la communication.

Après deux ans, en 2024, ce client est venu en Chine pour discuter avec nous de leur nouveau projet de structure en acier pour un factor pharmaceutique et nous a apporté des snacks locaux. Il nous a dit que l’industrie pharmaceutique en Algérie connait une tendance haussière. Nous avons apprécié leur disponibilité et leur confiance, et nous continuerons à répondre à leurs attentes en leur fournissant une qualité et un service meilleurs.
