--La maison individuelle devrait toujours être la meilleure.
Cette villa a été fabriquée selon le design du client. Dans le dessin, c’est la norme ASTM, mais ce client a accepté d’utiliser la norme chinoise, en remplaçant par des spécifications correspondantes ou un peu plus grandes.
| Philippines three floors villa --Le meilleur doit toujours être la maison. | |||||
| Pays | Philippines | Année | 2023 | ||
| Project Information | |||||
| Projet | Villa en structure de acier | Dimension | 29.6m*12.74m*13.9m (Three floors) | Steel standard | Chinois |
| Matériel | H-steel | Paint | Peinture époxy | Purline | C purline |
| Stair | Inclu | Cheminée d'ascenseur | Inclu | Elevator | Inclu |
| sol | Planche de revêtement de sol 1mm | Mur | Client built | Conteneurs | 5x40HQ |
Il a trois étages, divisés en trois unités. Comme ce client a deux garçons, chaque famille a une unité. C’est votre propre maison, certainement nous avons promis la qualité et l’assistance pour construire votre maison de rêve.



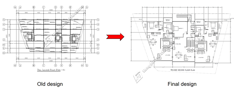
La livraison est imminente et le client a demandé un changement de la structure pour courber le plancher. Donc de l’urgence, nous avons ajusté le calendrier de production pour prioriser la correction de ce structure en acier villa projet et assurer une livraison à temps.

Nous avons également acheté deux ascenseurs pour logement pour ce client. Notre équipe de prospection professionnelle a évalué de manière rigoureuse les qualifications des fournisseurs et la qualité des produits pour selectionner un fabricant adéquat tout en s’assurant que les prix restent compétitifs sur le marché.

Delivery

Lors de l'installation, nous avons rapidement répondu aux questions du client. Ce client est très satisfait de la qualité de notre produit et de notre service et a parfois renvoyé des photos des progrès de l'installation.
