< img height="1" width="1" style="display:none" src="https://www.facebook.com/tr?id=692944559725730&ev=PageView&noscript=1" />

Conteneur d'habitation plat - 40 pieds

Conteneur d'habitation plat - 40 pieds

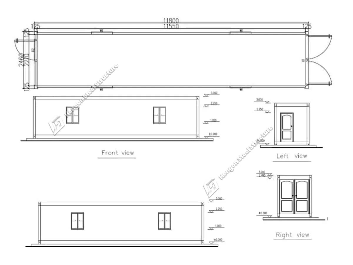
Size: 2.46mx11.8mxH2.8m
11
13
3
4
5
6
11
13
3
4
5
6

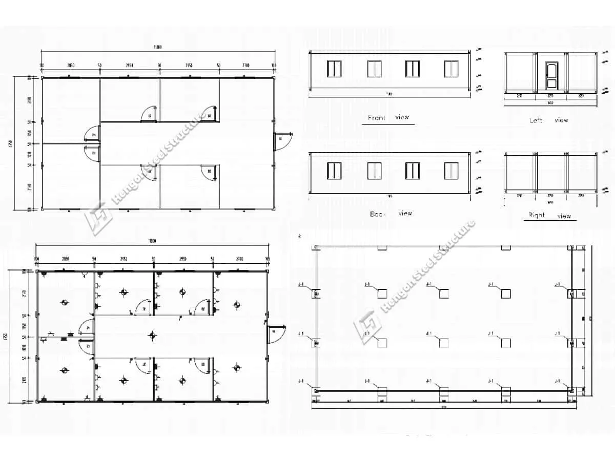
·  Il peut inclure une salle de bain, être assemblé avec plusieurs unités et être équipé d'une cuisine, entre autres caractéristiques.

·  Le toit et le sol sont préfabriqués en unités complètes, de sorte que le client n'a plus qu'à installer les panneaux muraux, les portes et les fenêtres sur place.

·  Un conteneur 40HQ peut contenir 3 unités.

·  Dortoirs scolaires, logements pour les travailleurs de chantiers, bureaux mobiles, cafés, restaurants, magasins, hôtels de villégiature et logements.


Enquête