--Établir une collaboration, Amis à vie
En 2024, après la pandémie, les clients sont enfin venus en Chine. Ils ont mentionné le maison container que nous avions auparavant fourni, louant la qualité et disant qu’elles sont encore en service. Ils ont également discuté de la possibilité de futures collaborations sur des projets tels que les stations essence et le soutien aux infrastructures publiques.

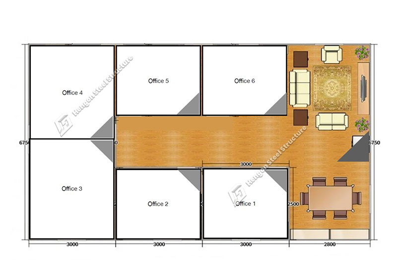
En 2019, ce client a commandé 3 maisons container assemblées de 40 pieds, avec une surface totale de 78 m2 pour des bureaux. Ils ont également commandé cinq maisons préfabriquées de garde, dimensions : 1,5 m x 1,5 m.
| Bahrain Flat Pack Container House --Établir la collaboration, Amis pour la vie | |||||
| Pays | Bahrain | Année | 2019 | ||
| Projet d'information | |||||
| Projet | 3x40ft flat pack container office+prefab guard house&hut | Dimension | 11.8mx6.75mxH3+1.5mx1.5mxH2.4mx5 | Structure | Galisé |
| Mur | Panneau sandwich EPS 50&75mm | Chambres | Bureaux : 6 plans Tente : 1 plan | sol | PVC auto-adhésif parquet |
| Électricité | Préfabriqué | Door | Porte de sécurité en acier 930*2000 | Conteneurs | 1x40HQ |
Initialement, ce client a vu notre produit en 3D pic dans notre boutique alibaba et voulait l’utiliser en tant qu’officier. Après discussion des détails et compréhension du produit, ce client nous a envoyé un dessin approximatif.

Notre équipe d'ingénieurs a alorsproceed avec le dessin. Après avoir reçu le dessin, ils ont été très satisfaits, non seulement de notre dessin mais aussi du prix. Ils ont immédiatement passé la commande.

20 jours plus tard, nous avons livré les produits comme prévu.

Après réception des produits, le client nous a envoyé des photos de l'charging sur site.

Retours des clients Image
